Product search

IEM电预塑SeriesCMSeriesFMB SeriesFMC SeriesNHM(S) SeriesGHM SeriesEPMZ SeriesRM&PMSTo Be Developed行星 Planetary DrivesOILW Travel DrivesOILH Hydraulic Winches

CHN | ENG

  • NHM(S) Series

    NHM(S) series hydraulic motor is a product manufactured by our company according to the technology and standard provided by Italy and improved according to the actual technology, our company adopts high performance processing equipment and advanced technology to strictly ensure the quality of the product, the product can fully meet the requirements of Italy in terms of comprehensive performance.

Product features

Low noise output due to eccentric crankshaft and five or seven pistons structure with lower vibration frequency characteristics;

The high starting torque and low speed stability resulting in the smooth running of the motor at low speed;

Strong reliablity and less leakage due to the patented plate compensational oil distributor design. Special sealing ring between piston and piston cover guarantees high volumetric efficiency;

High mechanical efficiency due to the roller design between the crankshaft and connecting rod;

With the reversible direction of rotation, the output shaft can endure certain external radial and axial forces;

High power-mass ratio, a relatively small volume and weight.

  • Range of application

    The motor has a wide range of displacement and can be widely used in hydraulic systems in construction machinery, marine machinery, agricultural machinery transportation, oil mining, machinery manufacturing and other industries.

NHM(S) Series

The following data are measured and obtained under specfic actual experimental conditions, and only for product description purposes. The data shoud not be interpreted as warranted characteristics in legal term.Ningbo lntermot (Ningbo Olil Control Hydraulic Co. Ltd.) reserves the rights to implement modifications without notice. All Partal or total reproduction and copy of such data without formal authorzation is stricty forbidden.

ModelDisplacement (ml/r)Pressure  (MPa)Torque (N.m)Rotational speed range (r.min)Weight (Kg)
Rated pressureMax. pressureRated torqueUnit theoretical torque
NHM1-63NHM1英文--28P-7.jpg7725322841115~90021
NHM1-80NHM1英文--28P-7.jpg9125323351315~85021
NHM1-100NHM1英文--28P-7.jpg9625323551415~80021
NHM1-110NHM1英文--28P-7.jpg11325324191715~80021
NHM1-125NHM1英文--28P-7.jpg12620253711915~80021
NHM1-140NHM1英文--28P-7.jpg13820254102015~80021
NHM1-160NHM1英文--28P-7.jpg15916203762415~70021
NHM1-175NHM1英文--28P-7.jpg18116204282715~63021
NHM1-200NHM1英文--28P-7.jpg19616204642915~63021
NHM2-100NHM(S)2-100-280.jpg11325324191715~80028
NHM2-150NHM(S)2-100-280.jpg

15925325882415~70028
NHM2-175NHM(S)2-100-280.jpg

18020255322715~60028
NHM2-200NHM(S)2-100-280.jpg

2072025611318~60028
NHM2-250NHM(S)2-100-280.jpg

2351620556358~60028
NHM2-280NHM(S)2-100-280.jpg

2761620653418~50028
NHM3-175NHM(S)3-175-400.jpg1812532670278~60035
NHM3-200NHM(S)3-175-400.jpg

2012532743308~60035
NHM3-250NHM(S)3-175-400.jpg

2542025752388~50035
NHM3-300NHM(S)3-175-400.jpg

2892025856436~45035
NHM3-350NHM(S)3-175-400.jpg

3401620804506~40035
NHM3-400NHM(S)3-175-400.jpg

3801620899566~35035
NHM6-400NHM(S)6-400-750.jpg39725321469595~50057
NHM6-450NHM(S)6-400-750.jpg

45225321672675~50057
NHM6-500NHM(S)6-400-750.jpg

49120251451735~40057
NHM6-600NHM(S)6-400-750.jpg

59420251756884~40057
NHM6-700NHM(S)6-400-750.jpg

683162016161014~35057
NHM6-750NHM(S)6-400-750.jpg

754162017851124~32057
NHM8-600NHM(S)8.jpgNHM8-1英文.jpg61725322282914~40066
NHM8-700NHM(S)8.jpgNHM8-1英文.jpg710253226261054~40066
NHM8-800NHM(S)8.jpgNHM8-1英文.jpg810202523961204~35066
NHM8-900NHM(S)8.jpgNHM8-1英文.jpg889202526291313~35066
NHM8-1000NHM(S)8.jpgNHM8-1英文.jpg1000162023661483~30066
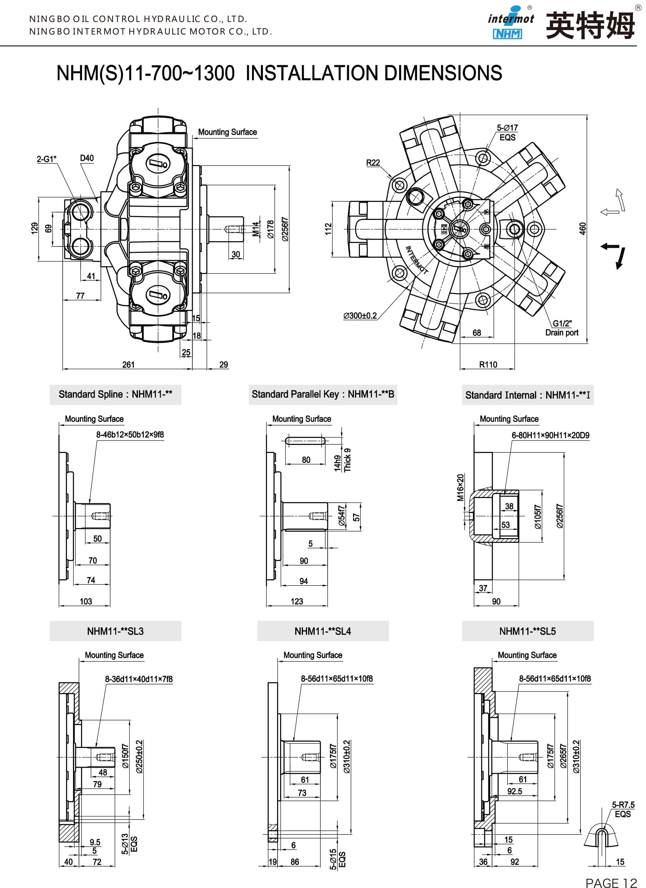
NHM11-700NHM(S)11-700-1300.jpg707253226121044~35088
NHM11-800NHM(S)11-700-1300.jpg

784253228991164~35088
NHM11-900NHM(S)11-700-1300.jpg

894253233061324~35088
NHM11-1000NHM(S)11-700-1300.jpg

981202529021453~32088
NHM11-1100NHM(S)11-700-1300.jpg

1104202532651633~32088
NHM11-1200NHM(S)11-700-1300.jpg

1234162029191823~32088
NHM11-1300NHM(S)11-700-1300.jpg

1301162030791923~25088
NHM16-1400NHM(S)16-1400-2400.jpg1413253252242092~300154
NHM16-1500NHM(S)16-1400-2400.jpg

1528202545202262~300154
NHM16-1600NHM(S)16-1400-2400.jpg

1648202548742442~300154
NHM16-1800NHM(S)16-1400-2400.jpg

1815202553672682~250154
NHM16-2000NHM(S)16-1400-2400.jpg

2035162048143012~250154
NHM16-2200NHM(S)16-1400-2400.jpg

2267162053643352~200154
NHM16-2400NHM(S)16-1400-2400.jpg

2444162057833612~200154
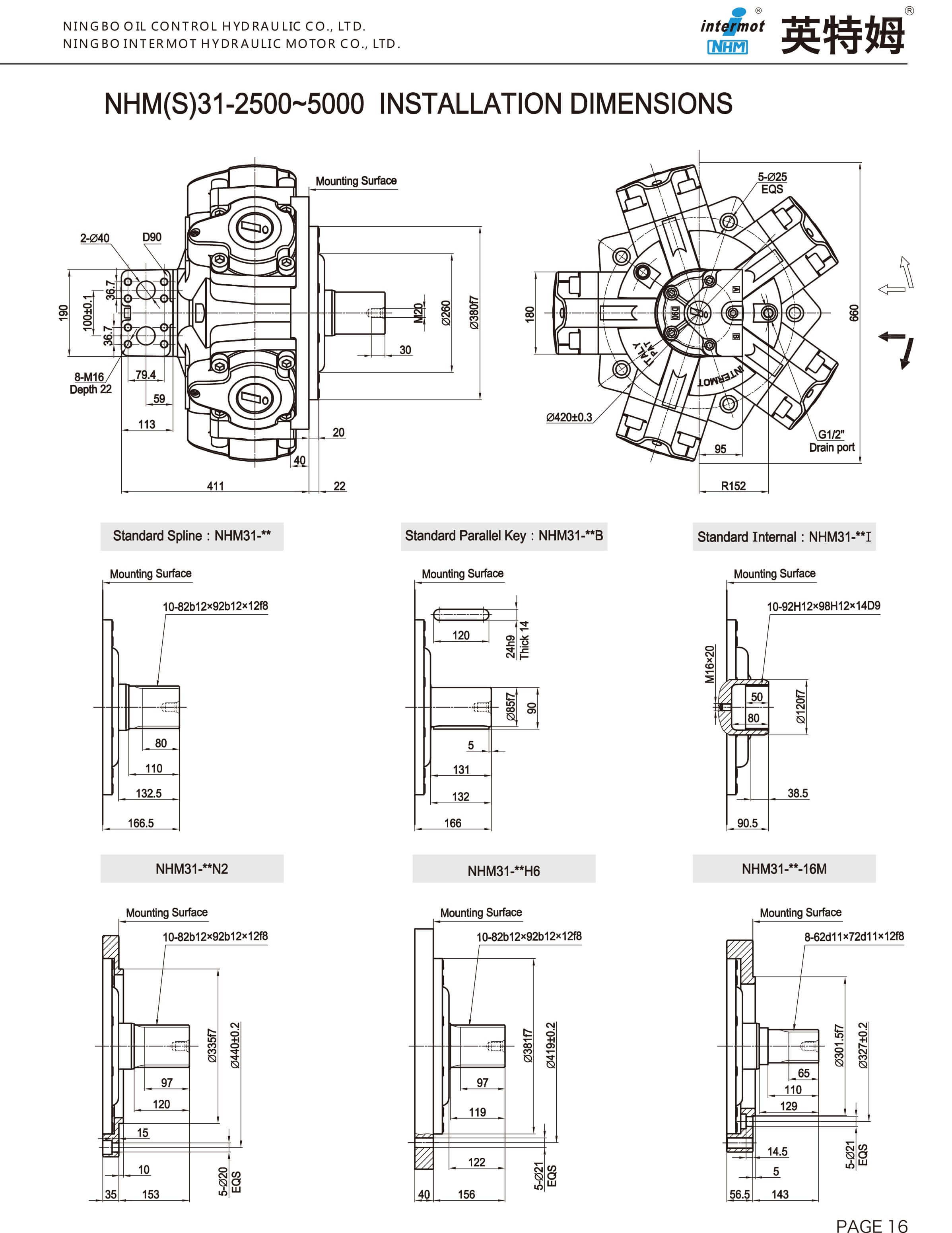
NHM31-2400NHM(S)31-2500-5000.jpg2375202570233512~200324
NHM31-2500NHM(S)31-2500-5000.jpg

2553253294383782~200324
NHM31-2800NHM(S)31-2500-5000.jpg

2683202579353971~200324
NHM31-3000NHM(S)31-2500-5000.jpg

3063202590574531~200324
NHM31-3150NHM(S)31-2500-5000.jpg

3218202595184761~16032
NHM31-3500NHM(S)31-2500-5000.jpg

3561162084245271~160324
NHM31-4000NHM(S)31-2500-5000.jpg

4153162098256141~140324
NHM31-4500NHM(S)31-2500-5000.jpg

45221620106986691~140324
NHM31-5000NHM(S)31-2500-5000.jpg

48281620114237141~140324
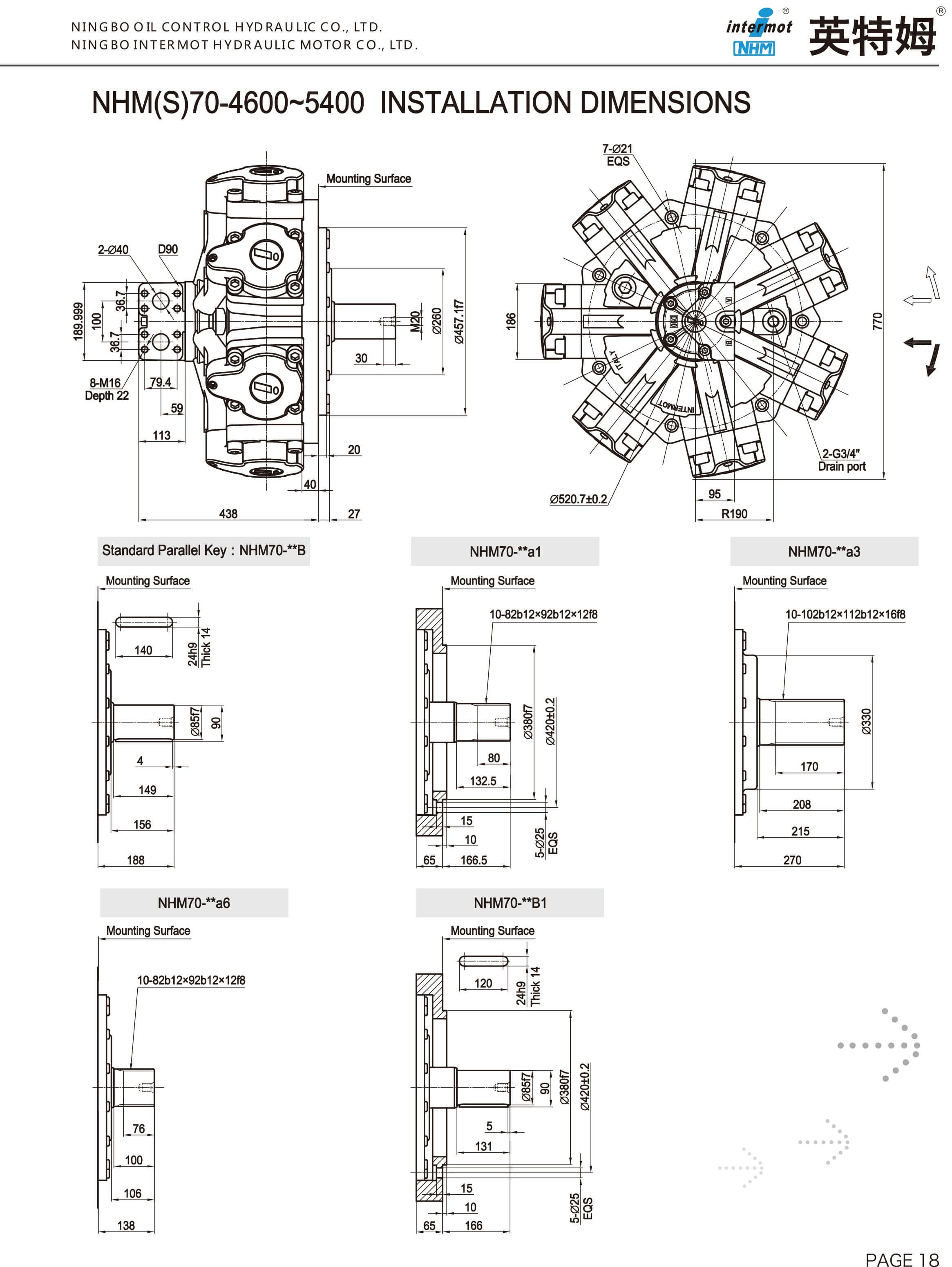
NHM70-4600NHM(S)70-4600-5400.jpgNHM70-1英文.jpg46042025136176811~120500
NHM70-5000NHM(S)70-4600-5400.jpgNHM70-1英文.jpg49462025146267311~120500
NHM70-5400NHM(S)70-4600-5400.jpgNHM70-1英文.jpg54522025161258061~120500


Load more>>

Product identification description

NHM产品标识说明英文--28P-5.jpg

Matters needing attention

1.Filtration:the recommended filtration precision for normal industrial application is 25 um, andallowable precision is 75 u m under low-pressure low-speed or interval working conditions.

2.Viscosity:The optimum performance could only be obtained in the good viscosity condition andtherefore in most conditions, the viscosity of the motor should be within the range of 15-1000 cst.

3.Before the first time start-up, the hydraulic motor must be filled with hydraulic oil to prevent damage.4.Leakage:The drain port should be separately connected to the tank.Oil drain pipe should beinstalled below the oil level surface of the tank.Normally,the allowable maximum pressure for the motorbody is 0.1 Mpa.

5.The highest horizontal level of the drain pipe should be higher than the highest horizontal position ofthe motor housing to prevent the emptying oil storage.

6.The hydraulic motor can be installed in any position with rigid support. During the installation, ensurethat the drive shaft of the hydraulic motor and the output shaft of the hydraulic motor are concentric.7.Strictly ensure the cleanliness of the oil port connection, and keep away any solid particles.

8.Release both the radial and axial loads of the output shaft to enable the longer life of the motor.9.The type of motor cannot work as a pump.

Computational formula

①    The actual output torque of the hydraulic motor:M=0.159(P1-P2)V·ηm(N.m)

Where:P1、P2------------------------- Inlet and outlet pressure(MPa)

V--------------------------------------------------------- Displacement(ml/r)

ηm-------------------------------------------- Mechanical efficiency(%)

②    Output power of the hydraulic motor:

N=(M·n)/9950(kW)N=[q(P1-P2)/60000]·ηm·ηv(kW)

Where:n-------------------------------------------- Rotation speed(r/min)

q------------------------------------------------------------- Input flow(ml/min)

ηv---------------------------------------------- Volumetric efficiency(%)

③    Rotating speed of the hydraulic motor:

n=q/V·ηv(r/min)


Other

  • NHM hydraulic motor parts anatomy diagram1

  • NHM Operating Instructions2

  • NHM Operating Instructions3